欢居改造家,两房改三房,以租养贷超划算
在一线城市发展,买房能带来多少安全感,多少便利自然不必多说,但是买了房的人也有他们的烦恼。为什么会这样说?因为能一次性交清房款的人少之又少,大多数都是先付首付,剩余部分向银行贷款,通过每月还房贷的方式来获得这套房子,大多数人要还20年甚至30年才能还清。
对于普通的上班族来说,还房贷也是一笔不少的压力。每个月除了自己的正常生活和各种开支以外,还是要拿出很大一部分钱给银行。背着房贷的他们总是感觉力不从心,所以就会有“以租养贷”的说法。
今天我们的改造案例业主就是一位奋斗在一线城市的年轻小姐姐,非常幸运的是,她已经成功落脚,靠自己的努力购买了一套大房子。房子是二手的两居室,为了减轻自身的还贷压力,她选择将房子全屋改造改为三室,自住一间,多余的两间房出租出去“以租养贷”。
设计师:李浩
小区名称:和睦新村
改造区域:全屋
房源总面积:65
房源户型:两室一厅
翻新花费:45,742元
装修工期:52个工作日
装修日期:2020/1/7-2020/4/19 (受疫情影响,延期19天)
01.改造前



改造需求:
1、整体风格老旧,厨房卫生间动线不便;
2、墙皮部分空洞,脱落,且有些灰暗,需要重新粉刷;
3、房子需要出租,卫生间要做到能够在同一时间不影响共用;
4、卫生间和客餐厅的瓷砖松动,颜色款式旧;
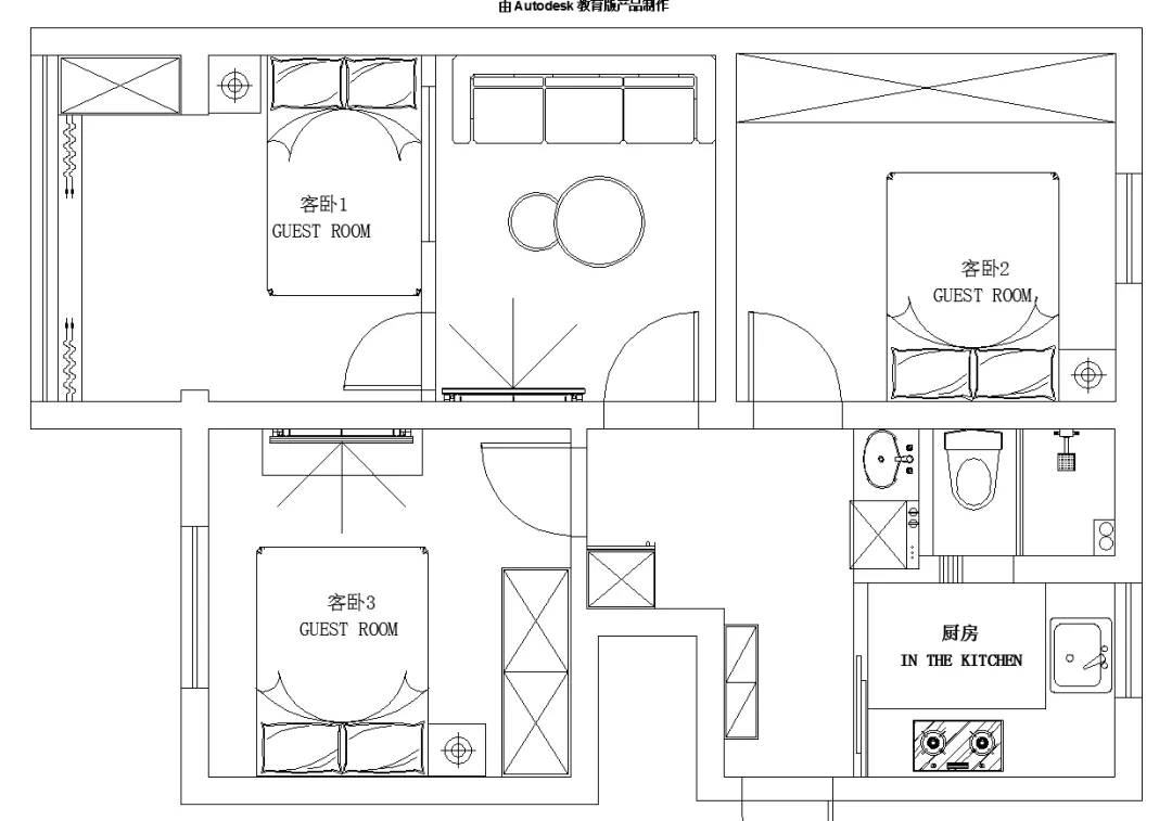
5、原有客厅隔断成卧室+客厅,卧室出租。
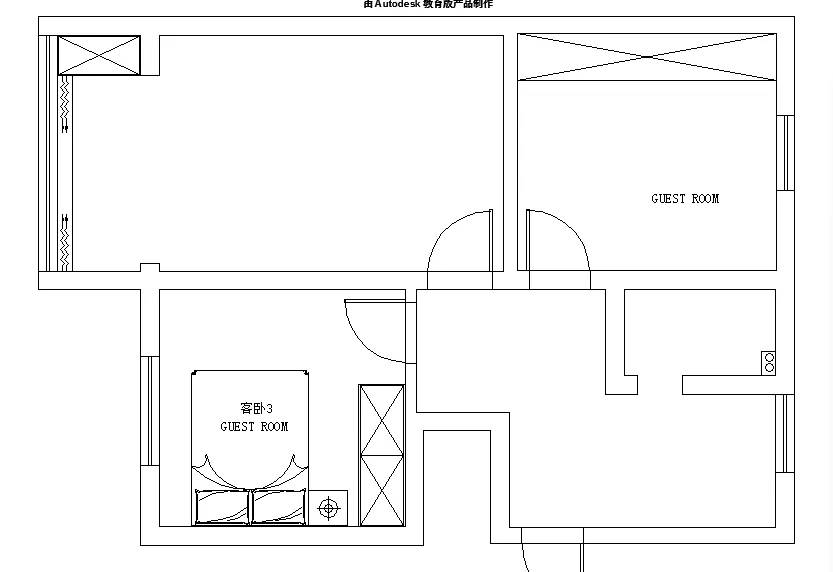
02.
户型图

△改造前

△改造后
03.
改造后

改造方案:
1、增加墙面使用寿命与牢固性,墙顶面铲除,满批三遍腻子,再进行乳胶漆滚涂;
2、卫生间:考虑到共用且不影响使用的情况,将原有的墙体往里推进40cm,将洗手台盆和淋浴房进行了分离;
3、增大厨房面积,更换橱柜和吊柜。
4、小餐厅和卫生间相连,选用了同一种颜色的瓷砖,灰色条纹刚好与橱柜下柜形成呼应,简约大气,开发式洗漱台嵌入了洗衣机,台面上既可以摆放化妆品又可以放洁具。
5、原有的餐厅隔断成卧室+客厅,隔墙装了窗户,不影响采光,门则选用了欧派的磨砂白套装免漆木门。
6、业主自住的房间,柜子上定制了一排吊柜,增加储物空间。
04.
改造效果


△第一步,保护家具和需要保留的装修,这对局部装修来说非常重要,也是欢居做的非常到位的一步~

△本期改造重点,朝南大客厅改为卧室+客厅组合。客厅放下沙发、茶几、储物柜等全套配置空间仍有富余。即使空间比原来小了一半,也丝毫不会影响到客厅的舒适度。为了不影响客厅采光,中间的墙面设置了磨砂窗户,也让空间看起来更加通透。


△由客厅改造的卧室连接着内阳台,面积足够大,塞得下一张大床和一组大衣柜(原有定制)。室内窗户搭配了ins风窗帘,白色的欧派木门,平时休息的时候可以拉上窗帘,保护隐私。

△基于增加储物空间的需求,业主自住的房间在原有的衣柜上增加了一排定制白色吊柜。

△小姐姐在房间里搭配了柔软的灰色系地毯和,ins风梳妆台,整个房间显得有格调了起来。

△第三间卧室经过墙面翻新,也变得舒适许多,目前还没有搭配软装,略显空旷,但已出租。

△小餐厅和卫生间相连,选用了同一种颜色的瓷砖,灰色条纹刚好与橱柜下柜形成呼应,简约大气,开放式洗漱台嵌入了洗衣机,台面上既可以摆放化妆品又可以放洁具。

△这次改造最复杂的就是洗手间的改造,考虑到多人共用的情况,我们将原有的墙体往里推进40cm,将洗手台盆和淋浴房进行了分离,并且拆除了原来的淋浴房。

△业主小姐姐买了一排白色的鞋柜,与房屋的搭配相得益彰。


△卫生间与厨房相连,在将卫生间的墙体推进后,侧面墙体加长,使得厨房空间变大,橱柜的吊柜和地柜采用了深浅撞色的元素,移门业主则选用了透明玻璃,增加视觉的宽敞和空间感。
两居变三居,二手老房变舒适简约精装新房,谁能想到这次改造仅仅花费了四万多!能帮业主省多少房贷了!如果不是看到成果,连欢居自己也不敢相信呢!还是因为我们的团队太太太厉害了~
今天的分享就到这里啦,我们下周再见吧~
▼
-你关注的-
| 尽情分享朋友圈 |
欢居局装,专注老房翻新,让家住出幸福感
